REQUEST A TOUR If you would like to see this home without being there in person, select the "Virtual Tour" option and your agent will contact you to discuss available opportunities.
In-PersonVirtual Tour
Listed by eXp Realty of Canada, Inc.
$ 1,499,000
Est. payment | /mo
9,583 Sqft Lot
$ 1,499,000
Est. payment | /mo
9,583 Sqft Lot
Key Details
Property Type Vacant Land
Listing Status Active
Purchase Type For Sale
MLS Listing ID R3013115
HOA Y/N No
Lot Size 9,583 Sqft
Property Description
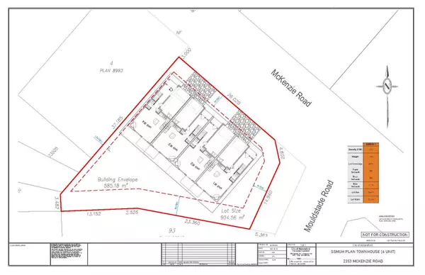
INCREDIBLE INVESTMENT OPPORTUNITY in Central Abbotsford! A freehold, non-strata 4-unit row home possibility, two lot option with current adopted PLA or wait for new OCP and rezone to SSMUH-1 for a FSR of 1.2 for development, excellent for builders and investors. Ideally located near 5 corners in old town Abbotsford with quick access to shopping, 400m to transit, and just minutes from the University of the Fraser Valley. Situated next to both an elementary and secondary school, the property offers rooftop views to railway area. All utilities are at lot line. This is a rare chance to secure a well-situated residential lot in a growing area. Don't miss out opportunities like this don't last! Information package available via email.
Location
Province BC
Community Central Abbotsford
Area Abbotsford
Zoning RS-7
Exterior
Fence None
Community Features Near Shopping
Utilities Available Sanitary Sewer At Lot Line, Storm Sewer At Lot Line, Electricity At Lot Line, Natural Gas At Lot Line, Natural Gas Connected, Cable Connected
View Y/N No
Street Surface Paved
Exposure Northeast
Garage No
Building
Lot Description Central Location, Cleared
Water Public
Others
Ownership Freehold NonStrata

"Elevating Real Estate, Redefining Your Lifestyle."







